Novice Datum objave
Vgradnja zunanjega dela dimovodnega kanala Bloka 6 v TE Šoštanj screenshot-151 11. 07. 2013
Rudis racing team sodeloval na 16. kolesarskem vzponu na Kal 022 10. 07. 2013
Podpis pogodb za izvedbo investicij v lokalnem okolju podpis-pogodbe-vrocatevod-2-003 30. 04. 2013
Rudis uspešno opravil Kontrolno presojo po standardih ISO 9001, ISO 14001 in OHSAS 18001 26. 04. 2013
Rudis sodeluje na Mednarodnem sejmu "ICCI 2013" v Turčiji slika-034-small1 25. 04. 2013
Rudis ME izvaja montažo dvigal v najvišjem objektu v KSA dsc02684-small11 28. 03. 2013
Rudis med slovenskimi podjetji z najvišjim bonitetnim ugledom 18. 03. 2013
Obisk ČKD Blansko ckd-blansko1 31. 01. 2013
Podpis pogodbe v Splošni bolnišnici Celje p10172681 31. 01. 2013
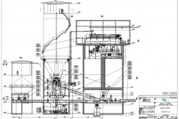
Rudis prevzel gradnjo pomožnih sistemov Bloka 6 novice-produkti1 30. 01. 2013
Ta stran uporablja piškotke. Z nadaljevanjem brskanja po tej strani, brez spremembe pri nastavitvah vaših piškotkov, se strinjate z našimi pravili uporabe piškotkov.
Sprejmi piškotke Zavrni piškotke Kaj so piškotki?